

项目位于深圳市南山区招商街道兴海大道以西、赤湾路以北、赤湾山南侧(地铁12号线左炮台东站),开发建设单位为深圳市地铁集团有限公司,建设监管单位为深圳市住房保障署。

房源数量:剩余待配数量,预计700套左右,仅供参考,具体待官方正式公布
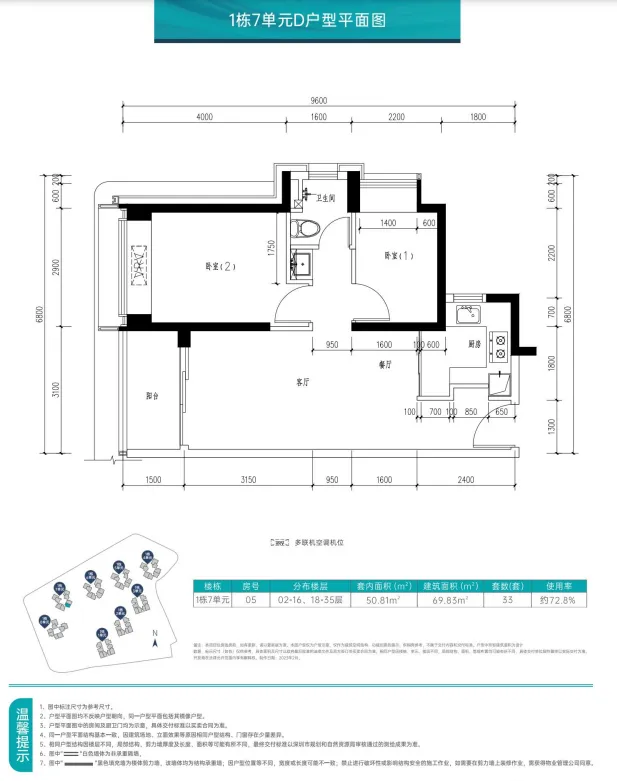
配售均价:为59394.52元/平方米(按建筑面积计算,含装修)。本项目住宅塔楼为装配式建筑,室内为精装交付。


交付时间:已于2025年12月交付,现楼,上图未交付实景图。
加阳哥微信/预约看房




交通配套
地铁:紧邻地铁12号线左炮台东站,步行即可到达,可快速直达前海、南山中心区等核心区域;附近还有2号线/5号线赤湾总站,方便换乘。
港口:临近太子湾邮轮母港、蛇口码头、妈湾港、赤湾码头,可便捷前往香港、澳门及国内外其他城市。
道路:周边有南海大道、兴海大道、港湾大道、望海路等主干道,以及赤湾路、文忠路(规划中)等次干道,形成完善的路网体系。
隧道:妈湾跨海隧道(在建)、东滨隧道、大南山隧道、小南山隧道等,进一步加强与周边区域的连接。

教育配套
幼儿园:项目内规划有1所18班幼儿园(在建),满足幼儿教育需求。
中小学:紧邻蛇口育才教育集团75班九年一贯制学校(在建),周边还有南二外赤湾学校、南山中英文学校(新校区)、北师大南山附校高中部等知名学府,以及太子湾国际学校(在建)等国际学校,覆盖全龄段教育需求。

其他配套
社区商业:项目内规划有约3400㎡商业街,满足日常购物、餐饮等需求。
区域商业:周边有赤湾汇(在建)、海上世界、兰桂坊LKFE(在建)、K11艺术购物中心(即将开业)等商圈,提供丰富的购物、娱乐、餐饮选择,约2.5km半径内可覆盖潮流万象。
山海资源:北侧紧邻赤湾山,南面远眺海景,拥有“三山两海”的生态优势,低区可看园林,高区可眺海景,居住环境优美。
公园绿地:周边有左炮台公园、文天祥纪念公园、樱花主题公园、赤湾公园、女娲滨海公园等多座公园,以及约1公里滨海长廊,提供休闲散步、运动健身的好去处。
文体中心:紧邻文体中心(在建),周边还有赤湾国际海洋文体中心(规划中)、深圳歌剧院(在建)等,未来将提供丰富的文化、艺术、体育活动场所。
运动设施:小区内规划有运动公园、泛会所,提供儿童活动、运动健身、瑜伽、阅读自习等功能,满足全龄段的运动和休闲需求。





「免责声明」
① 我们尊重原创!仅作分享之用!可能部分文章素材推送时因种种原因未能与原作者联系上,若涉及版权问题,敬请原作者联系我(微信号:shunshoubao)删除处理!
②本号正文及答复等全部内容仅为公众号运营者对相关问题的个人分析,旨在传达和交流观点,不作为购房决策依据~
③本号为非官方号!
建议关注“深城好房”公众号
了解深圳最新一手楼盘